Offmarket property. Owners seeking indications of interest from Autumn 2025
The Old Laundry
Freehold Grade II listed building in Putney, London SW15.
Blank Canvas create your own interior
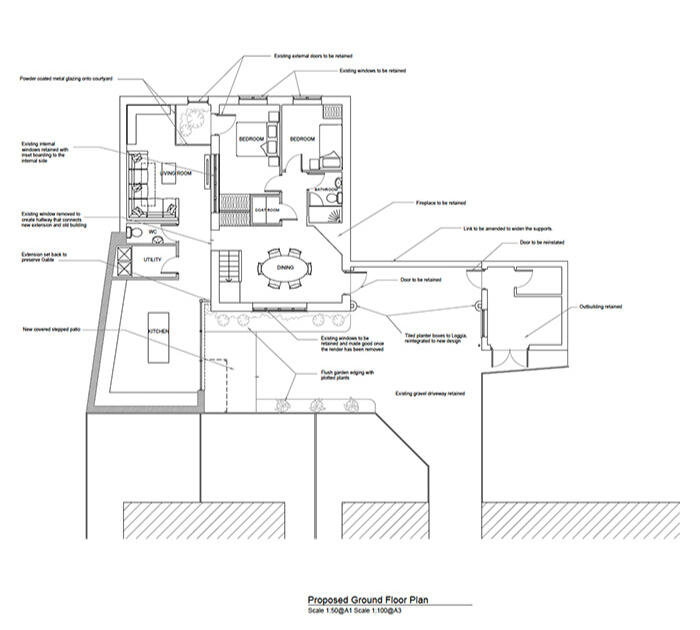
Planning Granted
Full planning permission has been granted by Wandsworth Council for conversion to a 4 bedroom home, with 3 bathrooms, spacious kitchen, dining and living areas. Adjacent to the main building, there is a detached out-house that can already function as an additional ensuite bedroom or home office.Putney has long been one of the more desirable areas of London to live, close to parks, the Thames and with easy access to the city and to the motorways. Rental prices for homes have recently hit a new high.See Wikipedia entry for 155-171 Oakhill Road
Rendered view -->

Historic Grade II
A brief history
It was designed in 1906 by prominent local architect Edward Hunt as a commercial laundry,
with sorting, packing and washing on the ground floor, plus a manager’s office, and above,
on the first floor, the clothes were dried, pressed and folded. The building has a host of
original features including an exposed roof structure with curved timber braces.
The building is a wonderful example of the Arts & Crafts architectural style of the early 20th century. The group of houses and flats nearby (155-171 Oakhill Rd) are also part of this listed heritage group.

Location West Putney
Private & secure
The house is somewhat secret because the only aspect visible from the street is the front gate and a private driveway, the end of which has parking for 2-3 cars.
167 Oakhill Rd has a very large footprint, espcially in relation to other properties in the area.Just a few minutes stroll to Wandsworth Park and the river, and in the other direction is East Putney underground station.
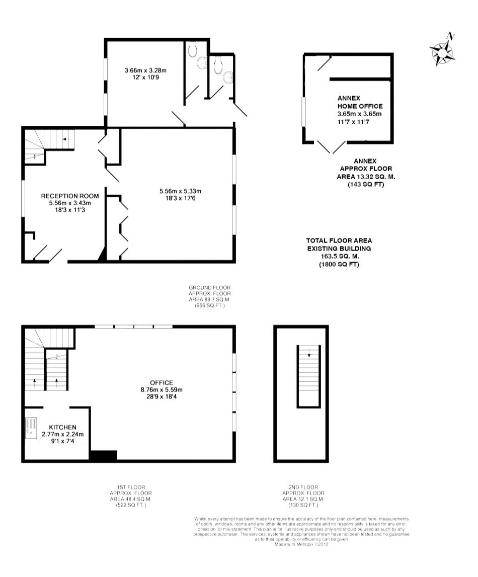
Floor plans
Layout as the building is being used currently (as an office used by the owner's business)

Change of use Opportunity
Planning
After two years of working with architects, town planners, heritage consultants and Wandsworth Council, in mid 2023 the owners were finally given planning permission to convert the building into a 4/5 bed residential dwelling.However the owners have now decided to live permanently in New Zealand, hence they are relinquishing their fomer dream of a detached home in Putney.Full planning details, architectural drawings can be shared with those who have a serious interest in purchase.Note: any building work carried out to convert a Grade II listed property attracts only 5% vat, as opposed to the usual 20%.For the time being, the property is not being marketed by any agent, and dealings will be direct with the owners.

Register your interest
For any questions or to register your interest in a viewing, please complete the following form which shall be sent confidentially and directly to the owner.
